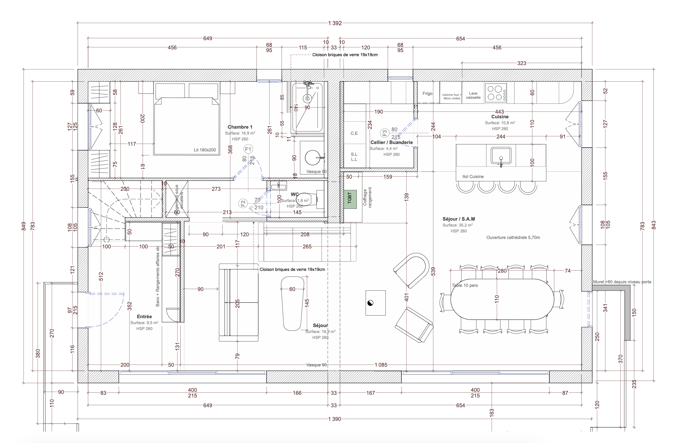
Orcières - Chalet

Rénovation et décoration complète d’un chalet de 150m2 ; création des espaces avec 3 chambres, 3 salles de bain, 1 dortoir, cuisine et entrée / séjour. Le projet a été imaginé à partir de volumes bruts. L’ensemble des espaces intérieurs a été entièrement conçu : organisation des pièces, définition des circulations, choix des matériaux et création des ambiances. L’objectif était de construire un intérieur fonctionnel et confortable, tout en conservant une atmosphère chaleureuse, en lien avec le cadre montagnard.

Un travail spécifique a été mené sur le dessin de mobilier sur mesure, afin d’optimiser les espaces et d’apporter des réponses adaptées aux usages du quotidien. Les matériaux, les couleurs et les finitions ont été sélectionnés pour créer un ensemble cohérent, sobre et durable.

La mission comprend la conception globale des intérieurs, le dessin de mobilier sur mesure, le choix des matériaux et du mobilier, ainsi que l’accompagnement du projet jusqu’à sa réalisation. (plus d’images à venir)

Projet
Chalet Orcières

Année
2025

Superficie
150m2

Lieu
Orcières - France

CHAMBRE SUITE VERT D’EAU

CHAMBRE TERRACOTTA

CHAMBRE SUITE MINÉRALE

DORTOIR ET SALLE DE BAIN ENFANTS